Veřejná zakázka: Centrální školní jídelna Bílina – výměna ležaté kanalizace v objektu

Informace o veřejné zakázce

fáze zadávacího řízení Zadáno (v archivu)
Zakázka byla zadána.
DBID: 589
Systémové číslo: P22V00000037
Datum zahájení: 04.03.2022
Nabídku podat do: 24.03.2022 08:00

Název, druh veřejné zakázky a popis předmětu

  • Název: Centrální školní jídelna Bílina – výměna ležaté kanalizace v objektu
  • Druh veřejné zakázky: Stavební práce

Stručný popis předmětu:
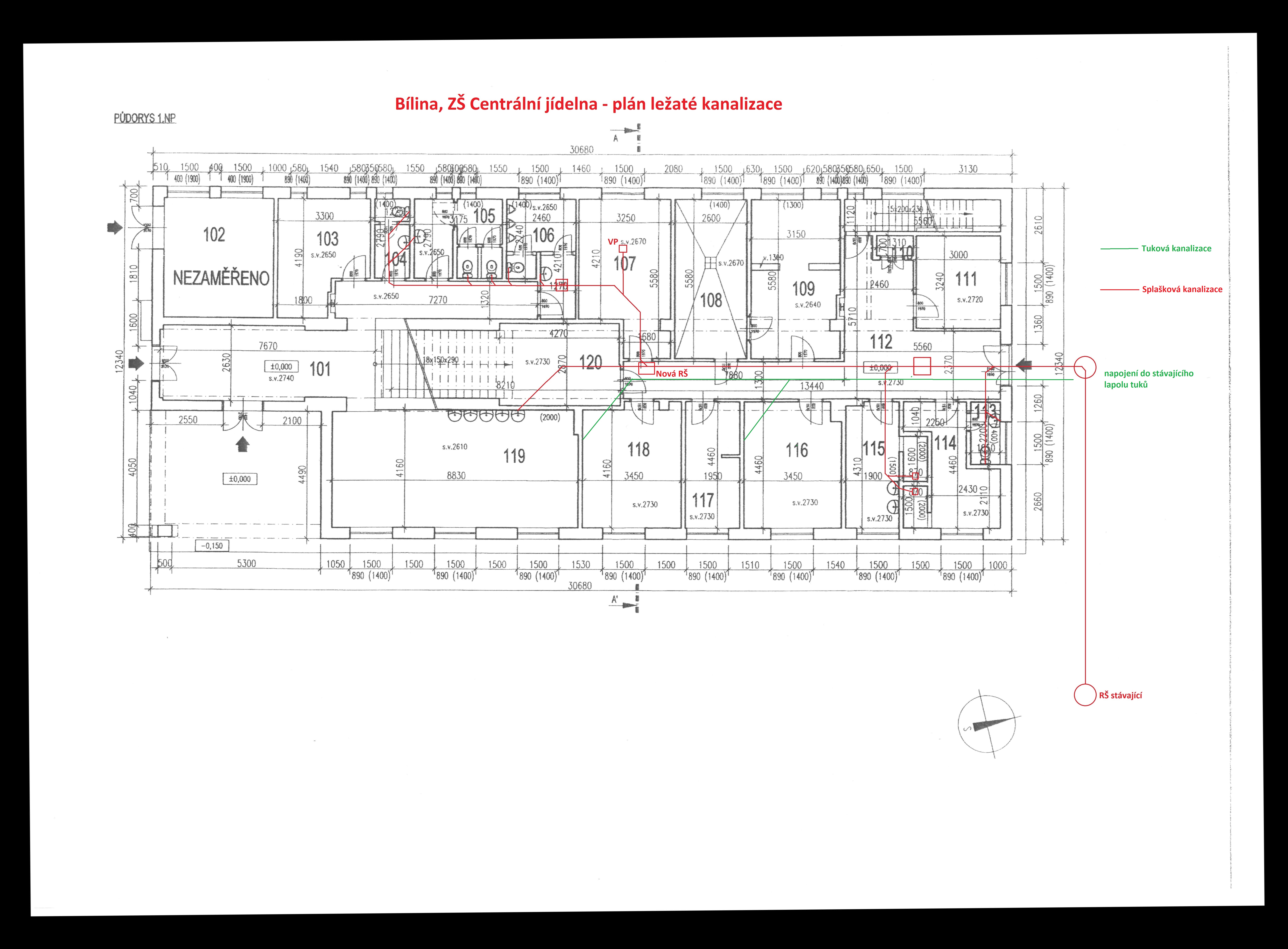
Předmětem plnění zakázky je kompletní výměna ležaté splaškové kanalizace vedoucí pod podlahou v objektu centrální školní jídelny až do kontrolní šachty vně budovy. Současně bude provedena výměna ležaté tukové kanalizace v budově, která ústí do tukového lapolu. Součástí zakázky je vyspravení vybouraných rýh, opravení vybourané dlažby a obkladů. Součástí je likvidace odpadů vzniklých při plnění zakázky.

Postup zadání, předpokládaná hodnota

  • Postup: VZMR II. Kategorie
  • Režim veřejné zakázky: VZ malého rozsahu
  • Předpokládaná hodnota: 495 000 Kč bez DPH

Místo plnění

  • Ústecký kraj
  • Teplice

Zadavatel

  • Úřední název: Město Bílina
  • IČO: 00266230
  • Poštovní adresa:
    Břežánská 50/4
    41801 Bílina
  • Název oddělení: Odbor nemovitostí a investic
  • Id profilu zadavatele ve VVZ: Z2019-032362

Adresa kontaktního místa

Nabídky, resp. žádosti o účast podávat na:
prostřednictvím elektronického nástroje E-ZAK (https://zakazky.bilina.cz)

Kontakt

Položky předmětu (CPV)

Zadávací dokumentace

Vysvětlení, doplnění, změny zadávací dokumentace

Ostatní zprávy k zakázce

Hodnocení nabídek

Veřejné dokumenty

Formuláře

URL odkazy

Plnění smlouvy na základě veřejné zakázky